2 Wierzbie, Zamość Lubelskie 22-437

Rezerwacja
Opis

Jeśli marzysz o domu na wsi, wśród pól i lasów, z dala od miejskiego zgiełku — ta nieruchomość jest dla Ciebie.

Wierzbie, malownicza miejscowość położona zaledwie kilkanaście minut od Zamościa, to miejsce, gdzie czas płynie wolniej, a każdy oddech pachnie świeżym powietrzem Roztocza.

Dom drewniany o ciepłym, naturalnym klimacie, posadowiony na działce o powierzchni 1700 m², to idealna propozycja dla osób szukających spokoju, ciszy i przestrzeni do stworzenia swojego azylu.



Przedmiotem sprzedaży jest nieruchomość zabudowana budynkiem mieszkalnym jednorodzinnym, położona w miejscowości Wierzbie 2, gmina Łabunie, powiat zamojski, na działce o powierzchni 0,17 ha.

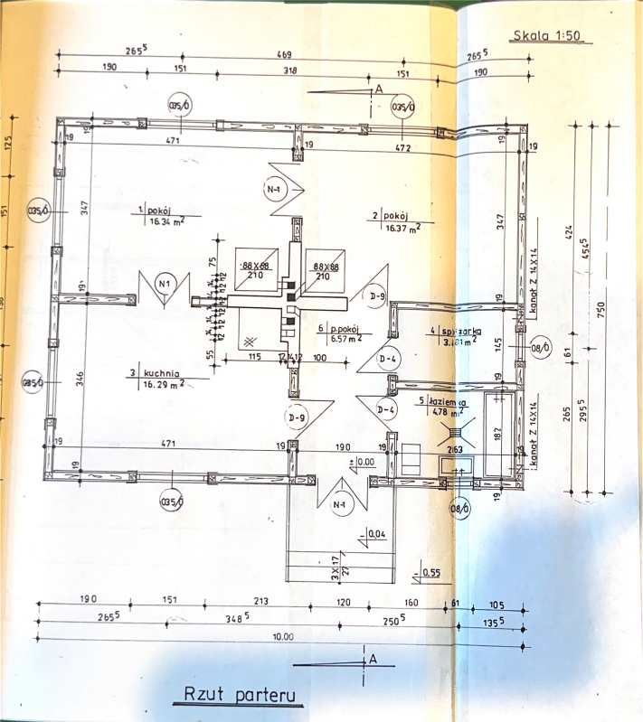
Budynek o powierzchni użytkowej ok. 64 m² wykonany jest w technologii drewnianej, parterowy, z gankiem i częściowym podpiwniczeniem pod wejściem.

Dom z lat 90., pierwotnie przeniesiony i posadowiony na nowych fundamentach w 1993 r., o konstrukcji drewnianej z bali.

Składa się z:

✅ trzech pokoi,

✅ kuchni,

✅ łazienki,

✅ przedpokoju.

Łączna powierzchnia użytkowa: 64,18 m²

Powierzchnia zabudowy: 75 m²

Kubatura: ok. 330 m³

Stan budynku: do generalnego remontu wewnątrz, natomiast elewacja drewniana jest zachowana w dobrym stanie i może pozostać w obecnej formie.

W piwnicy pod gankiem znajduje się hydrofor. Dach drewniany, dwuspadowy, kryty blachą trapezową, nowe orynnowanie i podbitka.

Działka o powierzchni 1 700 m² (0,17 ha), położona w obrębie ewidencyjnym 062005_2.0012.AR_1.328/4 Wierzbie, gmina Łabunie, oznaczona numerem 328/4.

Ma kształt prostokąta o wymiarach około 19 m szerokości i 89 m długości, z bezpośrednim dostępem do drogi asfaltowej (działka sąsiednia 328/3 została przekazana gminie pod drogę dojazdową).

Teren jest częściowo ogrodzony – ogrodzenie obejmuje około połowę powierzchni działki od strony domu.

Na posesji znajduje się drewniany budynek gospodarczy o powierzchni ok. 10 m², który może pełnić funkcję schowka, warsztatu lub niewielkiego garażu.

Media dostępne na działce:

👉 prąd,

👉woda z własnego ujęcia (hydrofor),

👉szambo,

👉światłowód,

👉gaz w pasie drogowym po drugiej stronie drogi asfaltowej.

Zgodnie z obowiązującym Miejscowym Planem Zagospodarowania Przestrzennego Gminy Łabunie (Uchwała Nr XIV/88/2012 Rady Gminy Łabunie), działka znajduje się w terenie oznaczonym symbolem MNU – zabudowa mieszkaniowa jednorodzinna i usługowa.

Plan dopuszcza lokalizację budynków mieszkalnych, usług nieuciążliwych, garaży oraz budynków gospodarczych, z zachowaniem charakteru zabudowy wiejskiej i ładu przestrzennego. Z jednej strony pola, z drugiej lasy – idealne miejsce dla miłośników natury i prywatności.

Fundamenty żelbetowe, ocieplone, z izolacją przeciwwilgociową.

Ściany z bali drewnianych o gr. 11 cm, ocieplone styropianem 10 cm i tynkowane od wewnątrz.

Dach dwuspadowy, konstrukcja drewniana.

Stropy i podłogi drewniane, ocieplone.

Stolarka okienna i drzwiowa drewniana.

Budynek wyposażony w instalację elektryczną oświetleniową i odgromową.

Niskie koszty utrzymania dzięki drewnianej konstrukcji i własnemu ujęciu wody.

Ogrzewanie – centralne (piec na pelet z podajnikiem).

Szambo – bez opłat kanalizacyjnych.

Nieruchomość stanowi odrębną własność, z księgą wieczystą prowadzoną przez Sąd Rejonowy w Zamościu.

Brak obciążeń i roszczeń osób trzecich.

Świadectwo charakterystyki energetycznej będzie dostępne przed przeniesieniem własności.

Wierzbie to spokojna i zadbana wieś w gminie Łabunie, położona ok. 12 km od Zamościa.

Okolica obfituje w lasy, pola i tereny rekreacyjne.

W odległości kilku minut – sklepy, szkoła, kościół i komunikacja autobusowa.

To doskonałe miejsce zarówno do zamieszkania, jak i do wykorzystania jako dom rekreacyjny lub baza weekendowa na Roztoczu.

Rok przeniesienia budynku: 1993

Materiał: drewno

Powierzchnia działki: 1700 m²

Powierzchnia użytkowa: 64,18 m²

Stan: do remontu wewnętrznego

Świadectwo energetyczne: w przygotowaniu

🔄 Zamiana wchodzi w grę

Celem aktualnych właścicieli jest sprzedaż tej nieruchomości w Wierzbiu i zakup mieszkania
2-pokojowego w Zamościu – najlepiej na parterze lub w budynku z windą.

W związku z tym możliwa jest zamiana domu na takie mieszkanie
(z odpowiednim rozliczeniem wartości pomiędzy stronami).

Jeśli posiadasz mieszkanie spełniające te kryteria – skontaktuj się, aby omówić szczegóły
lub umówić prezentację.

📅 Zapisz się na prezentację, aby poznać ten wyjątkowy dom osobiście:




Nota Prawna

Opis oferty zawarty na stronie internetowej sporządzany jest na podstawie oględzin nieruchomości oraz informacji uzyskanych od właściciela. Może podlegać aktualizacji i nie stanowi oferty określonej w art. 66 i następnych K.C. Treść niniejszego ogłoszenia nie stanowi oferty handlowej w rozumieniu Kodeksu Cywilnego. Na prezentacji poprosimy Państwa o podpisanie wydania adresu. Ze względów bezpieczeństwa właścicieli nieruchomości konieczne będzie podanie swoich danych. Imię i nazwisko, PESEL, nr telefonu, a także złożenie czytelnego podpisu na karcie odbioru adresu.
Szczegóły nieruchomości

2 Wierzbie, Zamość Lubelskie 22-437

Cena:

Rezerwacja

Charakterystyka nieruchomości
  • Działka na wsi
  • 3 pokój
  • 1 łazienka
  • Built 1993


    Zgłoś swoją ofertę zakupu









      Przepisz nazwę oferty z szczegółów nieruchomości













      Charakterystyka terenu wiejskiego
      Ogrodzenie

      częściowe

      Marek Kloc
      501 000 454
      Nowoczesny Pośrednik w obrocie nieruchomościami Lublin, Łęczna, Włodawa, Roztocze
      Licencjonowany Pośrednik w Obrocie Nieruchomościami (lic. nr. 17766 Licencjonowany Zarządca nieruchomości (lic. nr. 29125) Prezes Zarządu Mark Property sp. z.o.o – Biura nieruchomości działającego na terenie Lublina, Łęcznej, Włodawy i Roztocza. Prowadzący kanał na YouTube – Nowoczesny Posrednik w obrocie nieruchomosciami Prowadzący podcast - Nowoczesny Pośrednik
      Więcej
      [contact-form-7 id=